482 E Vallette St, Elmhurst, 60126
Toggle Navigation
Images
Floor Plans
Map
482 E Vallette St
Elmhurst, 60126
Scroll to Content
Images
Slideshow
Photo Grid
Hide
Previous
Next
Show more
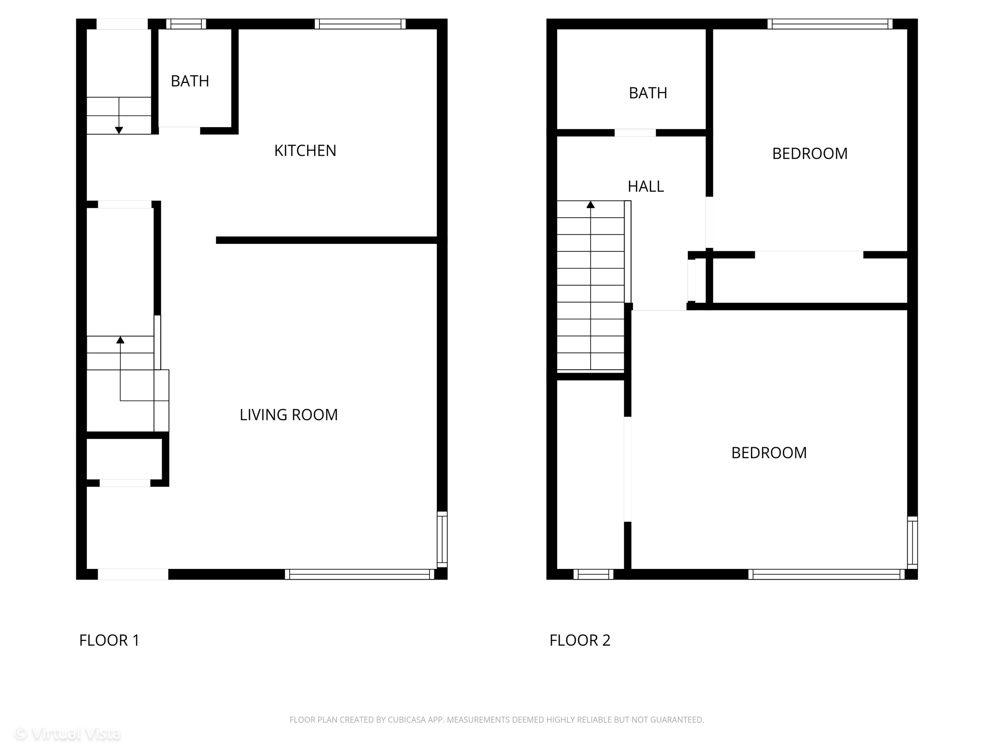
Floor Plans
Slideshow
Photo Grid
Hide
Previous
Next